or call us on 020 8892 5656
2 bed for Sale
Second Cross Road, Twickenham, TW2
Offers in Excess of £550,000
Book a viewing
Description
- Charming two-bedroom Period Cottage
- Off-street parking for one car
- Private rear garden
- Modern Upstairs Bathroom -sep shower
- Newly fitted kitchen with appliances
- Master bedroom with built in wardrobes
- The ground floor offers wood flooring throughout
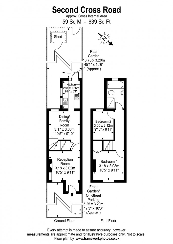
- 639sq ft -Freehold
- No Chain
New to Market and No Onward Chain! You might be interested in a Charming two-bedroom Period Cottage ideally situated on one of Twickenham's desirable crossroads, close to The Green. This freehold cottage offers a private rear garden, upstairs bathroom and dedicated parking for one car. Be Quick!
New to Market and No Onward Chain! You might be interested in a Charming two-bedroom Period Cottage ideally situated on one of Twickenham's desirable crossroads, close to The Green.
This freehold cottage offers a private rear garden, upstairs bathroom and dedicated parking for one car.
The ground floor offers wood flooring throughout, two separate reception rooms and a newly fitted sleek modern kitchen that opens out to the private rear garden with sunny patio and shed for storage of bikes etc. There is also a shared rear access point to the garden.
Upstairs the principal bedroom has a built-in wardrobe and a second bedroom would make an ideal child's room or work from home office.
There is also a modern upstairs bathroom with a separate shower. Too Good to Miss.
EPC: D
Council Tax: D
Council Tax Band: D (Richmond Borough Council)
Tenure: Freehold
Parking options: Off Street
Garden details: Private Garden
This freehold cottage offers a private rear garden, upstairs bathroom and dedicated parking for one car.
The ground floor offers wood flooring throughout, two separate reception rooms and a newly fitted sleek modern kitchen that opens out to the private rear garden with sunny patio and shed for storage of bikes etc. There is also a shared rear access point to the garden.
Upstairs the principal bedroom has a built-in wardrobe and a second bedroom would make an ideal child's room or work from home office.
There is also a modern upstairs bathroom with a separate shower. Too Good to Miss.
EPC: D
Council Tax: D
Council Tax Band: D (Richmond Borough Council)
Tenure: Freehold
Parking options: Off Street
Garden details: Private Garden
Floorplan & EPC
